

























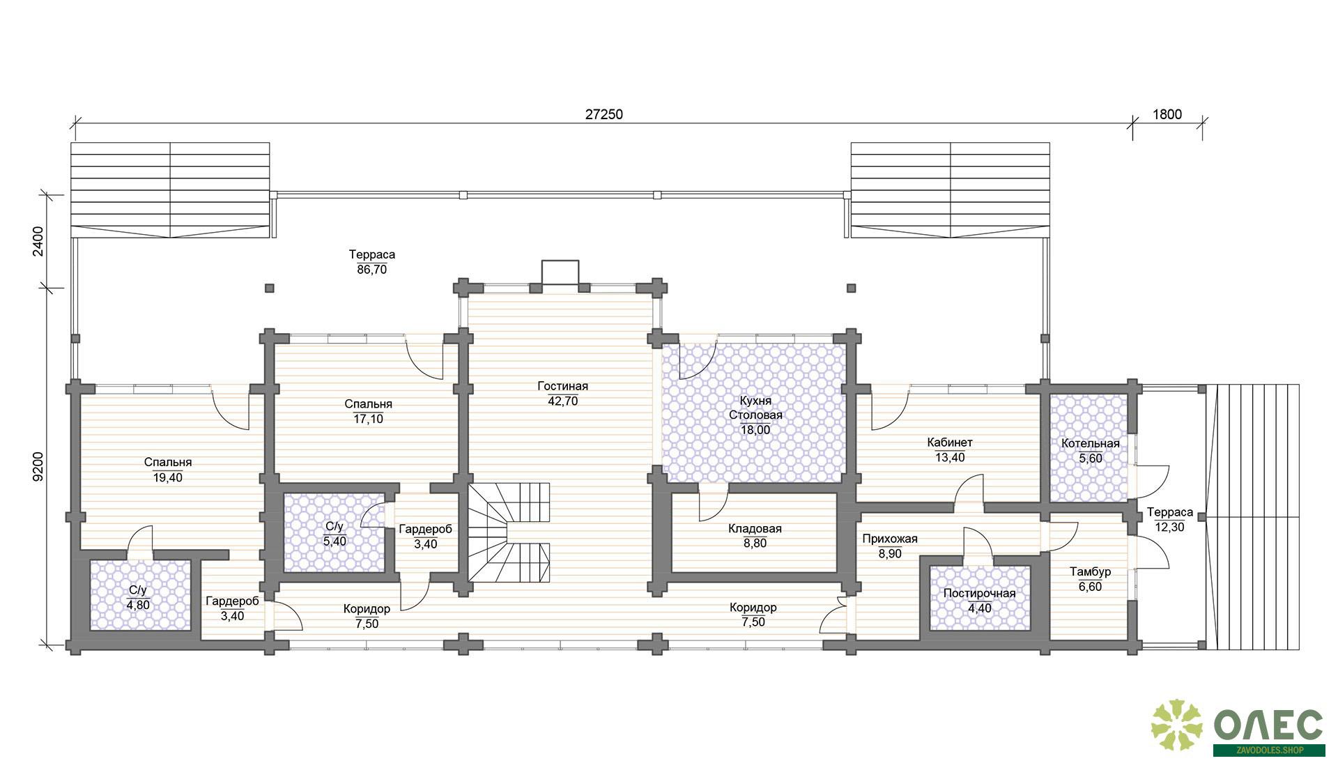
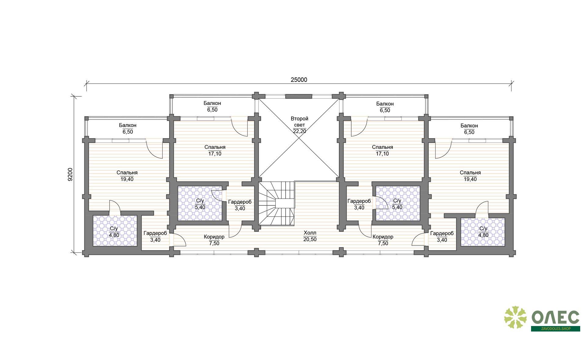
Проект дома «Пиллау»
Общая площадь: 448 м2 2 этажа 6 спален 6 санузлов Материал: клееный брус Главное, выберите внешний вид дома, а площадь любого проекта можно увеличить либо уменьшить так, как вы хотите. ◍ Комплектация: ☑ ДОМОКОМПЛЕКТ: □ СТЕНЫ: Стены клееный брус 185мм(h)х200мм, заводская зарезка чаш с ветрозащитным карманом, изготовленные согласно проекту, для сборки «как конструктор» на участке. Клеевая система AkzoNobel; □ ПЕРЕКРЫТИЯ: Подвенечный оклад, Балки перекрытия; □ СТРОПИЛЬНАЯ СИСТЕМА: Стропильная система согласно проекту, обрешетка сухая строганая 25x90мм, контробрешетка сухая строганая 45x45мм; □ Упаковка в специальную защитную пленку. ☑ ФУНДАМЕНТ: □ Монолитная ж/б плита 250мм; □ Бетон класса В25 (марка М350); □ Двойная сетка армирования, ячейка 250мм, арматура А500 d12мм; □ Песчаная подушка с послойным трамбованием; □ Гидроизоляционная мембрана Плантер; □ Закладные под инженерные коммуникации. ☑ СТЕНЫ: □ Проектная документация; □ Подкладная доска сухая строганная антисептированная с гидроизоляцией; □ Брус клееный хвойных пород сечение 185мм(h)х200мм, клееные балки; □ Межвенцовое утепление Политерм; □ Заводская зарезка чаш с ветрозащитным карманом и рассверловка под скрытую электрику; □ Монтаж с использованием пружинных узлов и оцинкованных комплектующих; □ Балки перекрытия сухие строганные (опционально клееные); □ Утепленные обсадные системы клееные. □ Окна 70мм профиль, 2х камерные стеклопакеты с аргоновым наполнением и напыление от УФ излучения и теплопотерь. ☑ КРОВЛЯ □ Стропильная система доска сухая строганная антисептированная (опционально клееная); □ Пароизоляционная мембрана Delta Dawi GP; □ Утепление 250мм с контрутеплением, каменная вата Юматекс Термо InWall; □ Супердиффузионная мембрана Tyvek Soft; □ Металлочерепица 0.5мм Grand line (опционально Клик Фальц GL Pro, ЦПЧ Braas, гибкая черепица Шинглас); □ Снегозадержатели, водосточная система Grand Line, металл; Стоимость, скидки и доп. комплектацию, уточняйте у нашего менеджера: 8 (922) 187-71-11